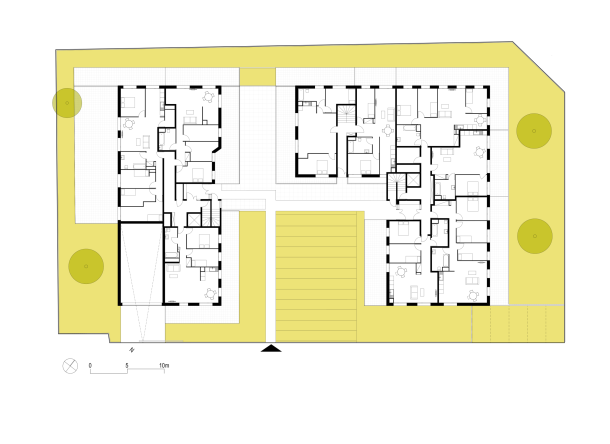
Betheny
36 logements
-
MOAPLURIAL NOVILIA
-
ProgConstruction de 36 logements collectifs labellisé PassivHaus
-
Surf2 487 m²
-
Coût4.6 M€ HT
-
MOEBET Structure : EVP / BET Fluide : WOR / Economiste : AXIO / Thermique : Synapse
-
credit testphoto test
Livré en 2024