Atelier d'architecture et d'urbanisme
Paris 13e – Centre Social Associatif - Augustin Faucheur

Paris 13°
Centre Social Associatif

  • MOA
    Ville de Paris
  • Prog
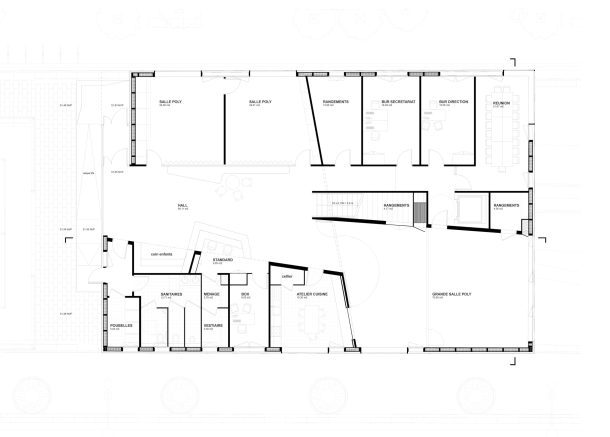
    Construction d'un ERP, centre social associatif
  • Surf
    480 m²
  • Coût
    1,3 M€ HT
  • MOE
    Augustin Faucheur et Muz, architectes
    Bet Tce : BCCB
Livré en 2014
Paris 13e – Centre Social Associatif - Augustin Faucheur
Paris 13e – Centre Social Associatif - Augustin Faucheur
Paris 13e – Centre Social Associatif - Augustin Faucheur
Paris 13e – Centre Social Associatif - Augustin Faucheur
Paris 13e – Centre Social Associatif - Augustin Faucheur
Paris 13e – Centre Social Associatif - Augustin Faucheur
Paris 13e – Centre Social Associatif - Augustin Faucheur
Paris 13e – Centre Social Associatif - Augustin Faucheur
Paris 13e – Centre Social Associatif - Augustin Faucheur
Paris 13e – Centre Social Associatif - Augustin Faucheur
Plus de projets