Atelier d'architecture et d'urbanisme
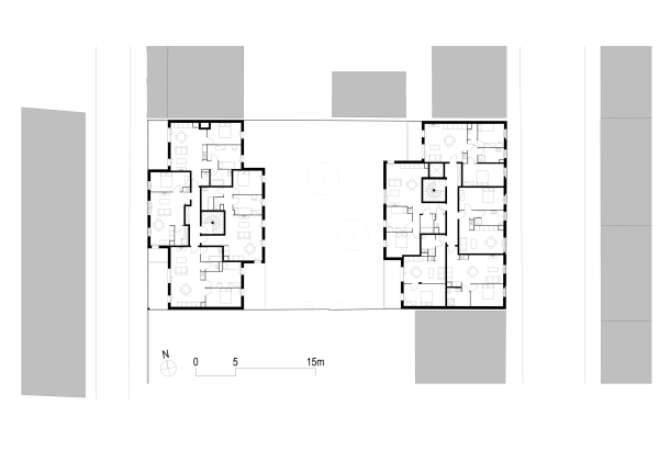
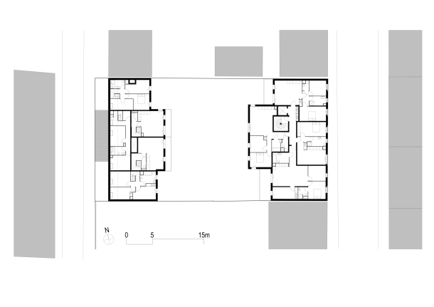
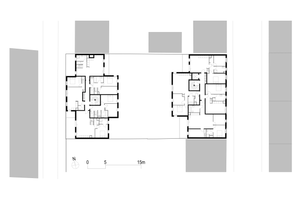
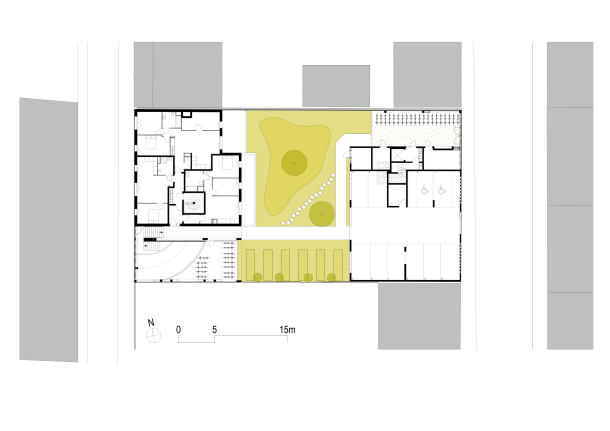
Saint Denis – 31 logements - Augustin Faucheur

Saint Denis
31 logements

  • MOA
    DEMATHIEU BARD IMMOBILIER
  • Prog
    Construction de 31 logements collectifs
  • Surf
    1 910 m²
  • Coût
    3.2 M€ HT
  • MOE
    Augustin Faucheur Architecture & Urbanisme
Livré en 2023
Saint Denis – 31 logements - Augustin Faucheur
Saint Denis – 31 logements - Augustin Faucheur
Saint Denis – 31 logements - Augustin Faucheur
Saint Denis – 31 logements - Augustin Faucheur
Saint Denis – 31 logements - Augustin Faucheur
Saint Denis – 31 logements - Augustin Faucheur
Saint Denis – 31 logements - Augustin Faucheur
Saint Denis – 31 logements - Augustin Faucheur
Saint Denis – 31 logements - Augustin Faucheur
Saint Denis – 31 logements - Augustin Faucheur
Saint Denis – 31 logements - Augustin Faucheur
Saint Denis – 31 logements - Augustin Faucheur
Plus de projets